Välkomna till oss i april 2024!
I april 2024 startar vi vår nya förskola Dibber Eken, i Eksätter i Åtvidaberg. På den här sidan kommer du att kunna följa arbetet med vår nya förskola!
Februari 2024 – Renovering fortsätter
Just nu fortsätter vår invändiga och utvändiga renovering av fastigheten på Timmervägen 10 som vi kommer att flytta in i. Här ser du några bilder från arbetet!



Januari 2024 – Träffa Amanda och Sofia – förskollärare till Dibber Eken
I april 2024 startar vi på Dibber vår nya förskola Dibber Eken, på Timmervägen 10 i Eksätter, Åtvidaberg och arbetet går framåt med full fart. Två av dem som kommer att vara med och starta upp förskolan är förskollärarna Amanda Rocklöv och Sofia Fridberg.
December 2023 – Renovering pågår
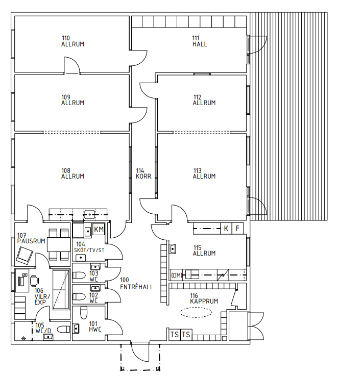
Arbetet med vår nya förskola Dibber Eken, som öppnar i april i Åtvidaberg, går framåt med full fart! Just nu pågår både invändig och utvändig renovering av fastigheten på Timmervägen 10 som vi kommer att flytta in i. Här ser du några bilder från arbetet, samt planritningen för hur det kommer bli när det blir klart!


